设计理念
办公空间的设计需建立在对服务公司的充分了解之上,才能设计出反映该企业风格与特征的空间,使设计具有个性与生命力。我们常说的功能动线及空间尺度,同样建立在充分了解的基础之上;当然,企业的未来规划对办公空间的扩充预留,也特别重要。现代办公空间设计,不可一味追求 “效益”,而应适当设计各类美观造型,搭配和谐色彩,配置充足灯光,让办公空间的装饰不再单调,让员工有归属感 —— 这样带来的效率提升更显著,企业效益也会更高。节能环保、动线合理舒适是设计的初衷,我们需同时兼顾物理层面与精神层面的需求,利用软装家具将 “轻硬装、重软装” 的理念发挥到极致,降本增效是可持续的设计趋势。
我们的团队由经验丰富的建筑师、室内设计师和项目经理组成。
我们的团队由经验丰富的建筑师、室内设计师和项目经理组成,他们在住宅、商业和公共空间设计方面拥有广泛的专业知识。
在LEVBOX,我们相信优秀的设计不仅仅是美学,更是关于理解空间如何影响人类体验。我们的设计方法融合了创新思维、技术专业性和对细节的执着关注。
我们的团队由经验丰富的建筑师。
我们的团队由经验丰富的建筑师、室内设计师和项目经理组成,他们在住宅、商业和公共空间设计方面拥有广泛的专业知识。
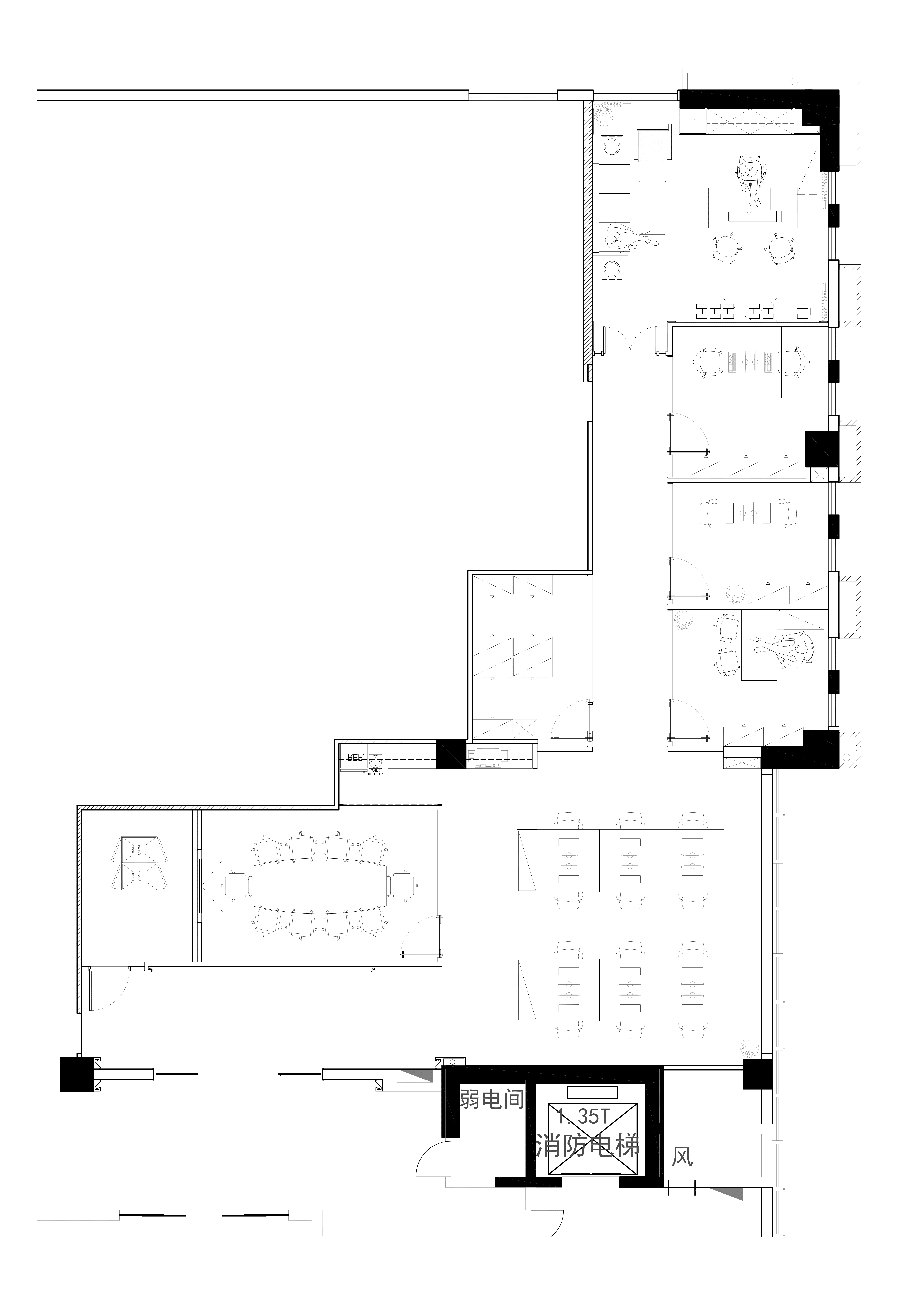
项目概况
项目名称:
BIOLONG
项目类型:
办公空间
项目地址:
上海市
面 积:
1200平方米
材 料:
人造石、烤漆玻璃、木饰面、软木、聚酯纤维板、地毯....
施工单位:
业主自荐
联系邮箱:
htao@levbox.com

