设计理念
商业空间设计是一门融合功能性、美学与品牌传播的综合性学科,旨在创造既能满足商业运营需求,又能提升消费者体验的环境;从广义上定义为所有与商业活动有关的空间形态,狭义上则是实现商品交换、满足消费者需求的空间环境,包含商场、步行街、写字楼、宾馆、餐饮店、专卖店等多种类型;商业空间设计是一个不断演进的多维学科,近些年的趋势强调体验优化、技术融合和可持续发展,我们需要平衡功能需求、美学表达和商业目标,创造出既吸引消费者,又支持品牌价值的环境空间。
我们的团队由经验丰富的建筑师、室内设计师和项目经理组成。
我们的团队由经验丰富的建筑师、室内设计师和项目经理组成,他们在住宅、商业和公共空间设计方面拥有广泛的专业知识。
在LEVBOX,我们相信优秀的设计不仅仅是美学,更是关于理解空间如何影响人类体验。我们的设计方法融合了创新思维、技术专业性和对细节的执着关注。
我们的团队由经验丰富的建筑师。
我们的团队由经验丰富的建筑师、室内设计师和项目经理组成,他们在住宅、商业和公共空间设计方面拥有广泛的专业知识。
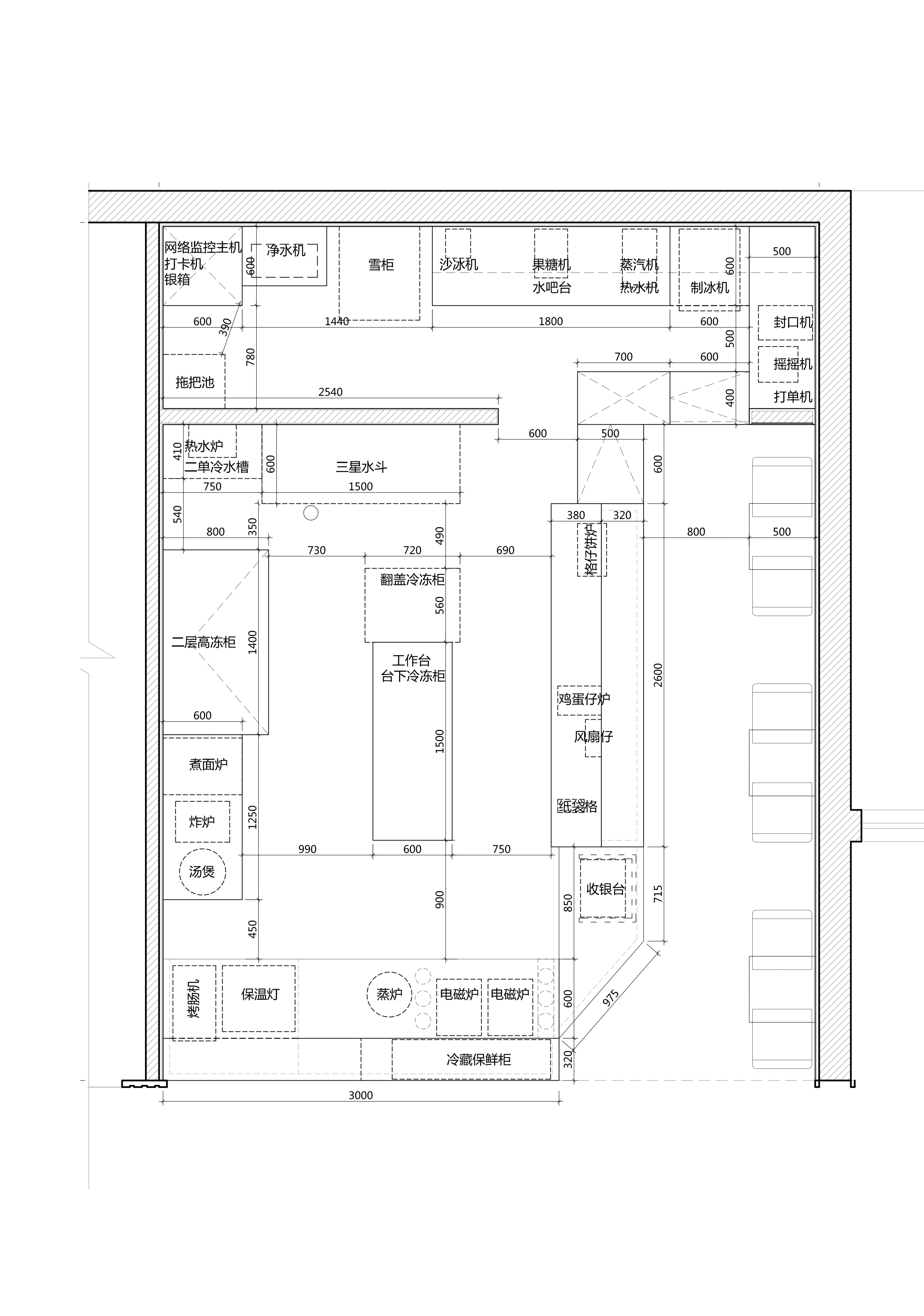
项目概况
项目名称:
丸家将
项目类型:
连锁餐饮空间、商业空间
项目地址:
上海市
面 积:
75平方米
材 料:
人造石、烤漆玻璃、木饰面、不锈钢、砖....
施工单位:
利卜"上海"建筑设计工程有限公司
联系邮箱:
htao@levbox.com

