设计理念
餐饮空间设计理念需综合考虑文化叙事、视觉转化、色彩应用及功能布局,以提升顾客体验和品牌辨识度;标志设计需提炼美食文化核心意象,我们必须深入理解每个餐饮项目形态的文化根源,避免刻板印象,同时在有限空间内构建高辨识度的视觉符号,确保标志在不同媒介中保持一致性;色彩选择直接影响顾客对食物的味觉预期 —— 暖色系(如橙黄)刺激食欲,冷色系(如蓝绿)表现海鲜或饮品的清新;构图方式也传递餐饮气质,对称布局适合传统餐饮,非对称构图体现现代创新;字体选择需匹配品牌调性,如衬线字体传递历史感,无衬线字体展现简约风格;高效利用空间是餐饮设计的核心,需优化就餐区与后厨布局,同时通过墙面展示架等设计提升顾客留存;明厨亮灶设计通过透明化操作流程增强消费信任,利用光影效果提升视觉吸引力
我们的团队由经验丰富的建筑师、室内设计师和项目经理组成。
我们的团队由经验丰富的建筑师、室内设计师和项目经理组成,他们在住宅、商业和公共空间设计方面拥有广泛的专业知识。
在LEVBOX,我们相信优秀的设计不仅仅是美学,更是关于理解空间如何影响人类体验。我们的设计方法融合了创新思维、技术专业性和对细节的执着关注。
我们的团队由经验丰富的建筑师。
我们的团队由经验丰富的建筑师、室内设计师和项目经理组成,他们在住宅、商业和公共空间设计方面拥有广泛的专业知识。
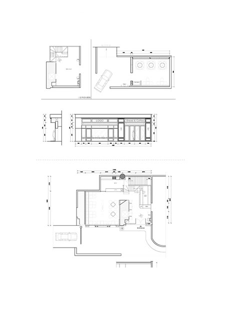
项目概况
项目名称:
兰生面包房
项目类型:
商业空间、餐饮空间
项目地址:
上海市
面 积:
300平方米
材 料:
大理石、艺术漆、木饰面....
施工单位:
HTD
联系邮箱:
htao@levbox.com

