主页

XERAFY

我们专注于创造独特、功能性和美观的空间设计解决方案,将您的愿景转化为现实。从概念到完成,我们的团队致力于打造能够激发灵感、提升生活品质的环境。

设计理念

办公空间的设计需建立在对服务公司的充分了解之上,才能设计出反映该企业风格与特征的空间,使设计具有个性与生命力。我们常说的功能动线及空间尺度,同样建立在充分了解的基础之上;当然,企业的未来规划对办公空间的扩充预留,也特别重要。现代办公空间设计,不可一味追求 “效益”,而应适当设计各类美观造型,搭配和谐色彩,配置充足灯光,让办公空间的装饰不再单调,让员工有归属感 —— 这样带来的效率提升更显著,企业效益也会更高。节能环保、动线合理舒适是设计的初衷,我们需同时兼顾物理层面与精神层面的需求,利用软装家具将 “轻硬装、重软装” 的理念发挥到极致,降本增效是可持续的设计趋势。

在LEVBOX,我们相信优秀的设计不仅仅是美学,更是关于理解空间如何影响人们的使用体验和人们与空间的完美融合。我们的设计方法融合了创新思维理念、施工工艺技术的专业性和对细节的执着关注。

室内设计是建筑设计的延续和升华,LEVBOX在设计内装的同时,秉承尊重建筑原形态,并与周边自然环境相处融洽为出发点,力求将室内设计与原建筑构件完美融合,与自然完美融洽;同时我们的内装也成为一幢建筑的重要组成部分。创造功能合理、舒适美观的室内环境,满足使用和审美需求,是我们前进的动力和目标。

我们的团队由经验丰富的建筑师、室内设计师和项目经理组成,他们在办公空间、住宅空间、商业空间和公共空间设计方面拥有夯实的专业知识。并且在各自的行业领域内深耕多年,也正是这份多年的经验,才能托举起我们对设计深度及工艺细节执着的要求。

精致空间,LEVBOX倾力为您打造。

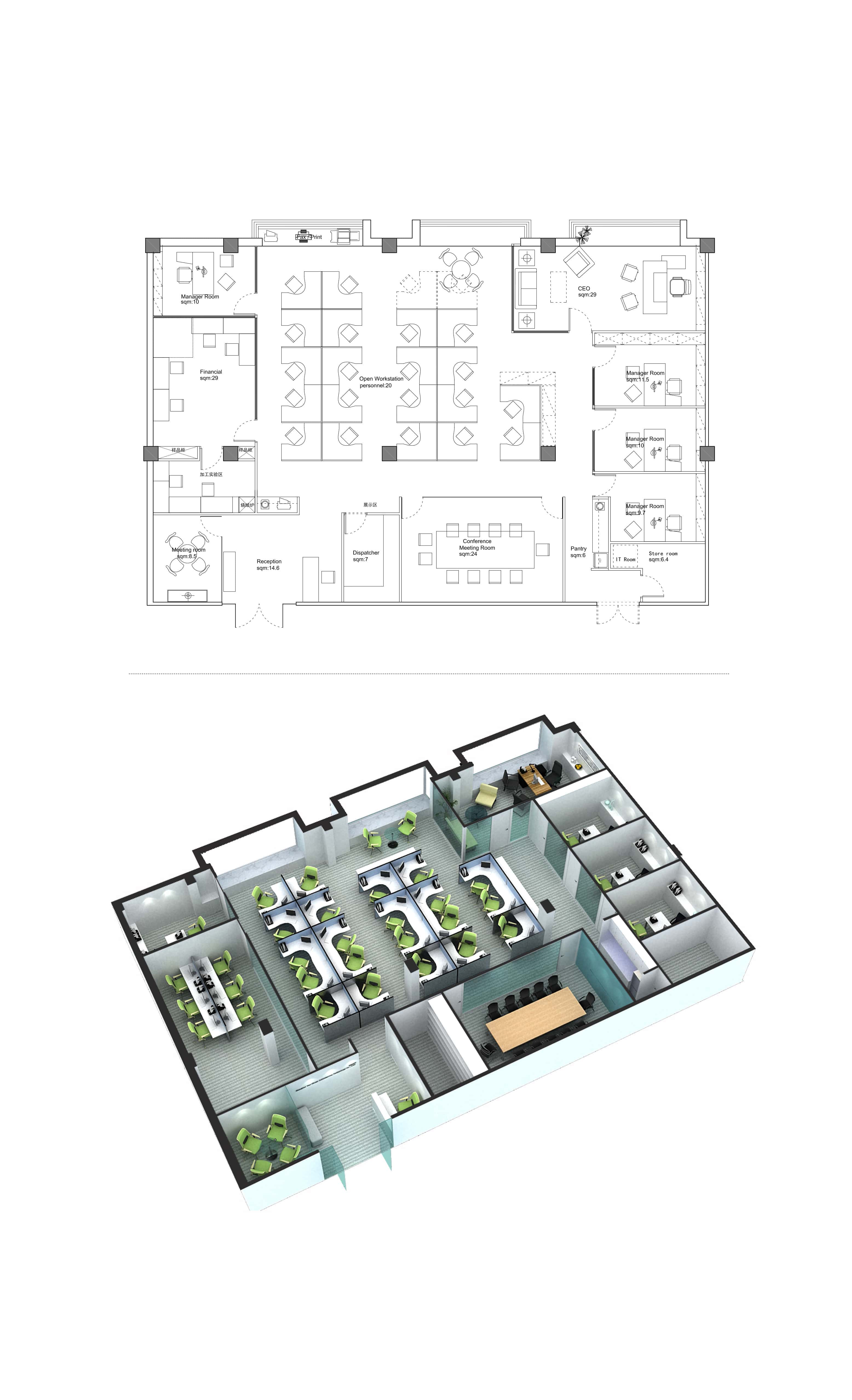
项目概况

项目名称: XERAFY
项目类型: 办公空间
项目地址: 上海市
面       积: 350平方米
材       料: 人造石、艺术漆、烤漆玻璃、地毯、软木、马赛克....
施工单位: JAXDA
联系邮箱: htao@levbox.com
»
Design Project 1
Design Project 2
Design Project 3
Design Project 4
Design Project 5
Design Project 6
Design Project 7
返回