设计理念
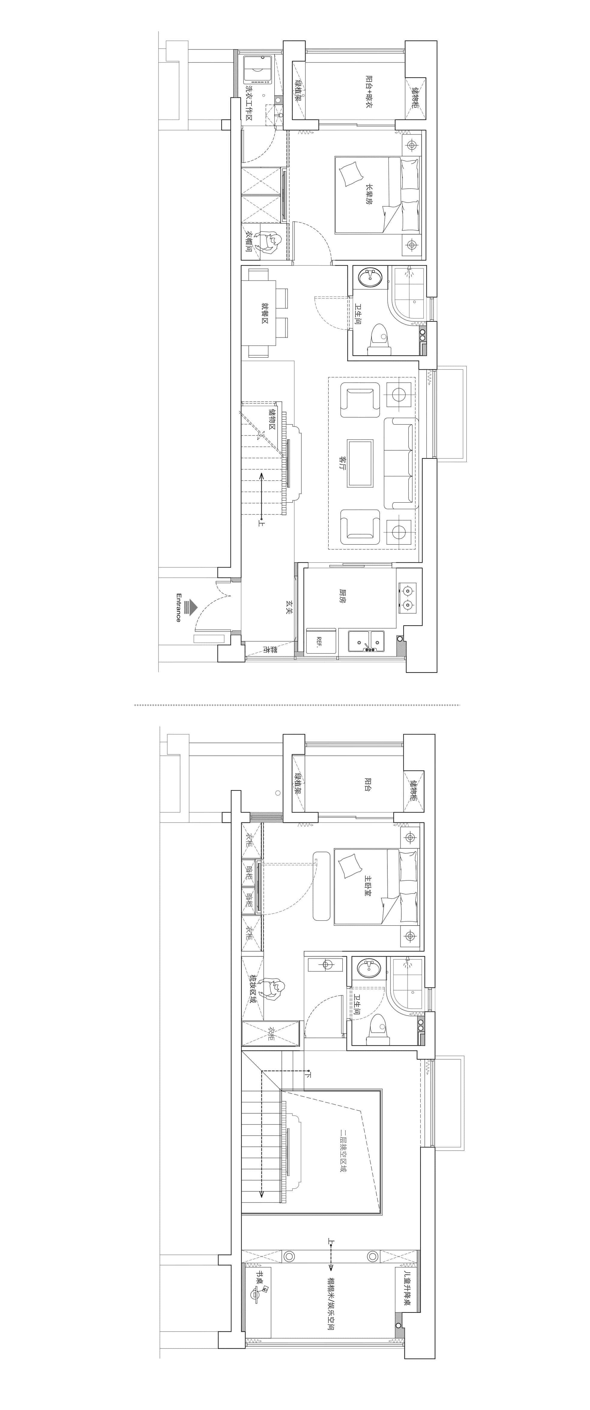
原房型复式结构楼梯造型对整个空间动线切割较大,整体房型通透方正。所以我们结合业主的实际情况,从功能分布到理念融合,决定将楼梯位置调整,这样进门就可以直接将人分流,一楼与二楼各自动线不相干扰。原楼梯空间处可以做为餐厅空间,独立而静谧,而新楼梯的侧面扶手可以做为电视背景墙。通过通透的背景墙,又将一楼和二楼连接在一起,自然形成一个家的闭环。
在LEVBOX,我们相信优秀的设计不仅仅是美学,更是关于理解空间如何影响人们的使用体验和人们与空间的完美融合。我们的设计方法融合了创新思维理念、施工工艺技术的专业性和对细节的执着关注。
室内设计是建筑设计的延续和升华,LEVBOX在设计内装的同时,秉承尊重建筑原形态,并与周边自然环境相处融洽为出发点,力求将室内设计与原建筑构件完美融合,与自然完美融洽;同时我们的内装也成为一幢建筑的重要组成部分。创造功能合理、舒适美观的室内环境,满足使用和审美需求,是我们前进的动力和目标。
我们的团队由经验丰富的建筑师、室内设计师和项目经理组成,他们在办公空间、住宅空间、商业空间和公共空间设计方面拥有夯实的专业知识。并且在各自的行业领域内深耕多年,也正是这份多年的经验,才能托举起我们对设计深度及工艺细节执着的要求。
精致空间,LEVBOX倾力为您打造。
项目概况
项目名称:
金地新天地
项目类型:
复式、家装
项目地址:
安徽省淮南市
面 积:
136平方米
材 料:
大理石、镜面、实木地板、壁布、艺术漆、不锈钢....
施工单位:
利卜(上海)建筑设计工程有限公司
联系邮箱:
htao@levbox.com

